|
|
Die Befunduntersuchung
Am Beispiel der Kath. Liebfrauenkirche in 55430 Oberwesel
wird deutlich, dass sich durch eine Befunduntersuchung im Vorfeld einer Sanierungsmaßnahme
frühzeitig Schäden an der Holzkonstruktion feststellen lassen. Rechtzeitig
erkannte Schäden bringen die Finanzierung nicht durcheinander!
|
|
Die Kirche Unserer Lieben Frau
liegt am Rhein-Ufer und mit dem Bau wurde 1308 begonnen. Während der Bauzeit
wütete die Pest. Die Altarweihe fand 1331 statt. Der Chor mit seinen 18
Meter hoch aufragenden Fensterbahnen geht ohne Absatz in das über 30 m
lange Kirchenschiff über. Die Kirche ist aus dem örtlichen Schieferbruchstein
gemauert. Von jeher hatte die Kirche einen roten Verputz mit weißen Quadermalereien.
Vom Volk wurde sie daher die Rote Kirche genannt.
Die Chormadonna in der Chorfassade war früher den Rhein-Schiffern gut
sichtbar und heißt heute noch die Schiffermadonna. Die Kirche
beherbergt einen der frühesten und wertvollsten Schnitzaltäre, den
Goldaltar. Dargestellt wird auf dem Goldaltar das Heilswerk Gottes an den Menschen. |
|
Bei einer Vorbegehung am 27.09.2001 durch
Dr. Gerhard Binker in Begleitung von Herrn Baubezirksleiter Stoffel vom Bisch.
Generalvikariat Bistum Trier und Herrn Architekt Alwin Bertram, Hennweiler,
stellte man sehr versteckte Schäden auch an der Dachstuhl-Konstruktion
fest. Vorallem in den Dachfußbereichen fanden sich Anzeichen von Befall
durch Pilze und Nagekäfer, die zunächst nur durch das geschulte Auge
zu erkennen waren. |
|
Probebeilungen mit einem Beil und Spitzhammer
legten zum Teil eklatante Schäden an der Holzkonstruktion offen. Es wurde von
der Fa. Binker Materialschutz GmbH vorgeschlagen, zunächst eine Befunduntersuchung
durchzuführen, um die Hölzer zu identifizieren, die von Pilzen geschädigt
sind und um das Ausmaß des Pilzbefalls zu erruieren. Auch sollte dabei die Pilzart
festgestellt werden.
Nach der Auftragserteilung durch Herrn
Ltd. Ordinariatsrat Micha Flesch und Baubezirksleiter Eltges, Bisch. Generalvikariat
Trier, begann Befund- und Zimmermeister Andreas Kratz, Binker Materialschutz GmbH,
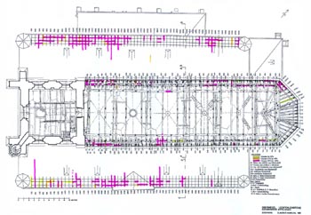
am 5.11.2002 mit der mehrtägigen Befundung. Hierbei wurde mit langen Spezialbohrern
und dem Bauendoskop ermittelt, welche Hölzer von Pilzen geschädigt sind und
die Schädigungen wurden farblich nach ihrem Schädigungsgrad in einem Grundrißplan
festgehalten.
Es ließ sich überwiegend Pilzbefall durch
Blättlinge und Porenschwämme diagnostizieren. Aber auch Befall durch den
Trotzkopf (Coelostethus pertinax L. = Dendrobium pertinax L.) war festzustellen. Der
Trotzkopf ist auf pilzbefallenes Holz angewiesen und befällt sowohl Nadel- wie
auch Laubholz. Das ermittelte Schadausmaß dient nun zur Festlegung der erforderlichen
zimmermannsmäßigen Holzauswechselungen und Kostenvorkalkulation.
|
|